Description
The AllWeather corrosion resistant aluminium track is manufactured in Australia to exacting standards.
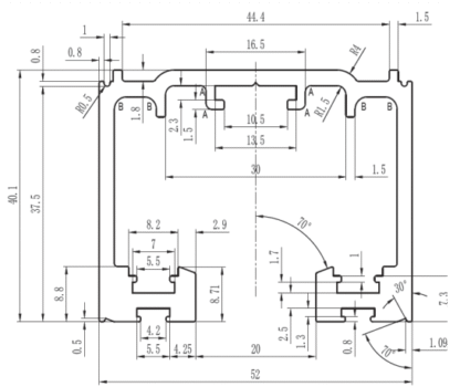
At just 40mm tall and 52mm wide this track is capable of carrying a door, or panel, that weighs 350kg.
Built to work perfectly with the NXS350SS stainless steel roller, this track incorporates high density polymer “tracks” that provide super smooth travel for heavy loads.
Clever design features:-
- High density Polymer track inserts for smooth rolling
- Centreline indentation for easy drill location on the inside of the track makes accurate hole location simple.
- Apertures at the bottom of the track allow draught reducing brushes to be installed between the door and track.
- Internal longitudinal ribs reduce the chance of the roller “jumping” out of its defined work envelope.
- Low profile track is just 40mm tall and 50mm wide
Link here for dimensional information.




