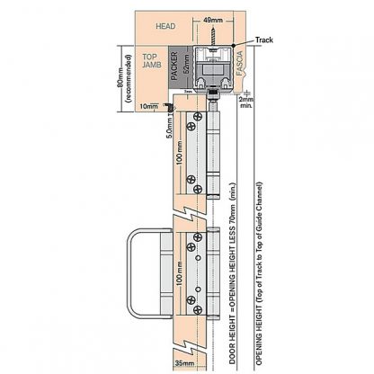
Description
AW483SS Cowdroy AllWeather 100 mm Intermediate Hinges and Handle Set
Stainless Steel D Handle Hinge Set
Used to join odd to even doors and allow doors to be pulled towards the jamb for improved sealing and locking.
This is the standard hinge design.
Sets include 2 x non-handle hinges and 1 x D handle hinge in pre-boxed kits with SS screws.





